- 豊友ハウジングトップページ
- 一戸建てをエリアから探す
- 市川市
- 中国分
- 中国分3丁目 長期優良住宅 4999万円
新築一戸建て

中国分3丁目 長期優良住宅 4999万円
情報更新日:2025/12/11 次回更新予定日:2025/12/25
所在地千葉県市川市中国分3丁目[周辺地図]
交 通北総線「矢切」駅徒歩20分






◆北総線「矢切」駅徒歩20分
◆土地面積45坪超の広々敷地
◆長期優良住宅取得
◆駐車場並列2台で前面道路も広々
◆南西×北西の両公道面の角地
◆土地面積45坪超の広々敷地
◆長期優良住宅取得
◆駐車場並列2台で前面道路も広々
◆南西×北西の両公道面の角地
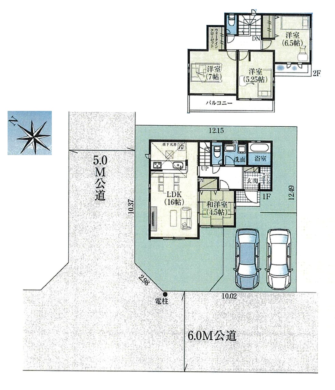
物件詳細情報
物件No.20000432115
| 所在地 | 千葉県市川市中国分3丁目 | ||
|---|---|---|---|
| 交通 | 北総線「矢切」駅徒歩20分 | ||
| 間取 | 4LDK | ||
| 土地面積 | 149.47m² 公簿 | ||
| 建物面積 | 97.7m² | ||
| 販売戸数 | 1戸 | 総戸数 | 全1戸 |
| 構造・規模 | 木造 2階建て | 築年・入居 | 2025年11月上旬 |
| 建物現況 | 完成済 | 建築確認番号 | 第HPA-25-07633-1号 |
| 引渡時期 | 即引渡可 | 地目 | 宅地 |
| 用途地域 | 第一種低層住居専用地域 | 建ぺい率 | 40% |
| 容積率 | 80% | 権利種類 | 所有権 |
| 接道 | 南西側6M公道に10M接道 北西側5M公道に10M接道 |
小学校区 | 中国分小学校(720m) |
| 中学校区 | 第一中学校(1520m) | 取引態様 | 媒介 |
| 設備 | 公営水道、本下水、都市ガス | ||
| 備考・制限等 | 価格変更 | ||
こだわり項目
区画整理及び分譲地角地高台整形地平坦地緑豊かな住宅地閑静な住宅地地盤調査済LDK15帖以上長期優良住宅全室南向き全室2面採光庭複層ガラス設計住宅性能評価付建設住宅性能評価付(新築時)浄水器省エネ給湯器ガスコンロシステムキッチンカウンターキッチン3口以上コンロトイレ2ヶ所温水洗浄便座シャワー付洗面台浴室乾燥機浴室暖房追焚機能浴室1坪以上浴室に窓ウォークインクローゼットシューズインクローゼットTVモニタ付インターホンノンホルムアルデヒド24時間換気システム保育園・幼稚園800m以内
- ※価格は物件の代金総額を表示しており、消費税が課税される場合は税込み価格です。(1,000円未満は切り上げ。)
税率は引き渡し時期により異なりますので、各物件の詳細につきましてはお問い合わせください。 - ※敷地権利が借地権のものは価格に権利金を含みます。
- ※制作中に内容が変更される場合もありますので、あらかじめご了承ください。
- ※購入の前には物件内容や契約条件についてご自身で十分な確認をしていただくようにお願いいたします。
- ※完成予想図はいずれも外構、植栽、外観等実際のものとは多少異なることがあります。
- ※CG合成の画像の場合、実際とは多少異なる場合があります。
周辺地図
周辺施設一覧
- ショッピングセンター
- スーパー
- コンビニ
- ドラッグストア
- ホームセンター
- 飲食店
- その他店舗
- 商店街
- 大学
- 専門学校
- 高校・高専
- 中学校
- 小学校
- 保育園
- 幼稚園
- 公民館・児童館
- 病院
- 郵便局
- 役所
- 図書館
- 金融機関
- 警察・消防
- 趣味・娯楽施設
- 公園・運動施設
- 周辺の街並み
- 駅
- その他
お問い合せ先
- 株式会社豊友ハウジング
- お電話でのお問い合わせは
0120-900-118「ホームページを見た」とお問い合わせください - 千葉県市川市南八幡3-14-20
- 営業時間:9:30~18:00
- 定休日:第1火曜日・毎週水曜日
- 免許番号:千葉県知事免許(8)第011308号
- 豊友ハウジングトップページ
- 一戸建てをエリアから探す
- 市川市
- 中国分
- 中国分3丁目 長期優良住宅 4999万円



















